Aluminium Fenster
Entdecken Sie hochwertige Aluminiumfenster von führenden Herstellern wie Aliplast, Aluprof, Cortizo, Drutex, Forster, Procural, Reynaers und Schüco – alles an einem Ort. Wir bieten Ihnen eine große Auswahl an modernen, langlebigen und energieeffizienten Fenstersystemen, die höchsten Ansprüchen an Qualität, Design und Funktionalität gerecht werden.
Ob für Neubau, Renovierung oder gewerbliche Projekte – bei uns finden Sie die passende Lösung für Ihre individuellen Bedürfnisse. Dank der Vielfalt renommierter Marken können Sie die Vorteile unterschiedlicher Systeme vergleichen und direkt das Fenster wählen, das perfekt zu Ihrem Bauvorhaben passt.
Setzen Sie auf Stabilität, Nachhaltigkeit und zeitlose Eleganz – mit Aluminiumfenstern, die nicht nur optisch überzeugen, sondern auch mit herausragender Wärmedämmung, Sicherheit und Langlebigkeit punkten.
ALIPLAST-Aluminiumfenster
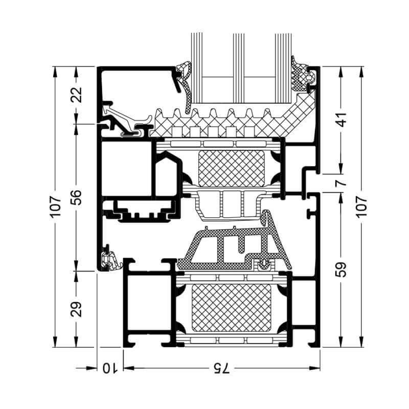
- Einbautiefe: 75 mm
- Anzahl der Kammern: 3 Kammern
- Anzahl der Dichtungen: 2 Dichtungen
- UW-Wert*: 0,9 W/(m²K)
- Anordnung des Flügels: Flächenversetzt
- Design: Modernes Design
- Dreifach-Verglasung möglich
- Schallschutz: bis zu 43 dB
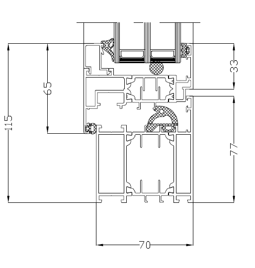
- Einbautiefe: 75 mm
- Anzahl der Kammern: 3 Kammern
- Anzahl der Dichtungen: 2 Dichtungen
- UW-Wert*: 0,8 W/(m²K)
- Anordnung des Flügels: Flächenversetzt
- Design: Modernes Design
- Dreifach-Verglasung möglich
- Schallschutz: bis zu 44 dB
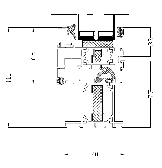
- Einbautiefe: 65 mm
- Anzahl der Kammern: 3 Kammern
- Besonderheit: Brandschutzfenster
- UW-Wert*: keine Angabe
- Anordnung des Flügels: Bündig
- Design: Schmales Design
- Zweifach-Verglasung möglich
- Schallschutz: bis zu 37 dB
ALUPROF-Aluminiumfenster
- Einbautiefe: 45 mm
- Anzahl der Kammern: Einkammerprofil
- Anzahl der Dichtungen: 2 Dichtungen
- UW-Wert*: bis zu 2,15 W/(m²K)
- Anordnung des Flügels: Flächenbündig
- Design: Modern, kantig, schlank
- Zweifach-Verglasung möglich
- Schallschutz: bis zu 48 dB
- Einbautiefe: 70 mm
- Anzahl der Kammern: 3 Kammern
- Anzahl der Dichtungen: 3 Dichtungen
- UW-Wert*: 1,0 W/(m²K)
- Anordnung des Flügels: Flächenbündig
- Design: Modern, kantig, schlank
- Dreifach-Verglasung möglich
- Schallschutz: bis zu 50 dB
- Einbautiefe: 79 mm
- Anzahl der Kammern: 3 Kammern
- Anzahl der Dichtungen: 3 Dichtungen
- UW-Wert*: 0,64 W/(m²K)
- Anordnung des Flügels: Flächenbündig
- Design: Modern, kantig, schlank
- Dreifach-Verglasung möglich
- Schallschutz: bis zu 50 dB
CORTIZO-Aluminiumfenster
- Einbautiefe: 70 mm
- Anzahl der Kammern: 3 Kammern
- Anzahl der Dichtungen: 2 Dichtungen
- UW-Wert*: 0,9 W/(m²K)
- Anordnung des Flügels: Flächenbündig
- Design: Modern, kantig, schlank
- Dreifach-Verglasung möglich
- Schallschutz: bis zu 45 dB
- Einbautiefe: 70 mm
- Anzahl der Kammern: 3 Kammern
- Anzahl der Dichtungen: 3 Dichtungen
- UW-Wert*: 0,75 W/(m²K)
- Anordnung des Flügels: Flächenversetzt
- Design: Schlankes Design
- Dreifach-Verglasung möglich
- Schallschutz: bis zu 46 dB
- Einbautiefe: 70 mm
- Anzahl der Kammern: 3 Kammern
- Anzahl der Dichtungen: 3 Dichtungen
- UW-Wert*: 0,8 W/(m²K)
- Anordnung des Flügels: Flächenversetzt
- Design: Kantig
- Zweifach-Verglasung möglich
- Schallschutz: bis zu 44 dB
DRUTEX-Aluminiumfenster
- Einbautiefe: 45 mm
- Anzahl der Kammern: 2 Kammern
- Anzahl der Dichtungen: 2 Dichtungen
- UW-Wert*: 1,06 W/(m²K)
- Anordnung des Flügels: Flächenbündig
- Design: Schlank, modern, kantig
- Zweifach-Verglasung möglich
- Schallschutz: bis zu 43 dB
- Einbautiefe: 70 mm
- Anzahl der Kammern: 3 Kammern
- Anzahl der Dichtungen: 3 Dichtungen
- UW-Wert*: 0,96 W/(m²K)
- Anordnung des Flügels: Flächenbündig
- Design: Schlank, modern, kantig
- Dreifach-Verglasung möglich
- Schallschutz: bis zu 43 dB
- Einbautiefe: 77 mm
- Anzahl der Kammern: 3 Kammern
- Anzahl der Dichtungen: 3 Dichtungen
- UW-Wert*: 0,76 W/(m²K)
- Anordnung des Flügels: Flächenbündig
- Design: Schlank, modern, kantig
- Vierfach-Verglasung möglich
- Schallschutz: bis zu 44 dB
PROCURAL-Aluminiumfenster
- Einbautiefe: 96 mm
- Anzahl der Kammern: 3 Kammern
- Anzahl der Dichtungen: 2 Dichtungen
- UW-Wert*: 0,66 W/(m²K)
- Anordnung des Flügels: Flächenbündig
- Design: Modernes Design
- Dreifach-Verglasung möglich
- Schallschutz:
- Einbautiefe: 78 mm
- Anzahl der Kammern: 3 Kammern
- Anzahl der Dichtungen: 2 Dichtungen
- UW-Wert*: 0,88 W/(m²K)
- Anordnung des Flügels: Flächenbündig
- Design: Schlank, modern, kantig
- Dreifach-Verglasung möglich
- Schallschutz: bis zu 38 dB
- Einbautiefe: 52 mm
- Anzahl der Kammern: Einkammerprofil
- Anzahl der Dichtungen: 2 Dichtungen
- UW-Wert*:
- Anordnung des Flügels: Flächenbündig
- Design: Schlank, modern, kantig
- Zweifach-Verglasung möglich
- Schallschutz: bis zu 39 dB
REYNAERS-Aluminiumfenster
- Einbautiefe: 77 mm
- Anzahl der Kammern: 3 Kammern
- Anzahl der Dichtungen: 2 Dichtungen
- UW-Wert*: 0,85 W/(m²K)
- Anordnung des Flügels: Flächenversetzt
- Design: Modernes Design
- Dreifach-Verglasung möglich
- Schallschutz: bis zu 45 dB
- Einbautiefe: 68 mm
- Anzahl der Kammern: 3 Kammern
- Anzahl der Dichtungen: 2 Dichtungen
- UW-Wert*: 0,95 W/m²K
- Anordnung des Flügels: Flächenversetzt
- Design: Hochwertig
- Dreifach-Verglasung möglich
- Schallschutz: bis zu 42 dB
- Einbautiefe: 76 mm
- Anzahl der Kammern: 3 Kammern
- Anzahl der Dichtungen: 3 Dichtungen
- UW-Wert*: 0,96 W/(m²K)
- Anordnung des Flügels: Flächenversetzt
- Design: Modernes Design
- Dreifach-Verglasung möglich
- Schallschutz: bis zu 45 dB
SCHÜCO-Aluminiumfenster
- Einbautiefe: 75 mm
- Anzahl der Kammern: 3 Kammern
- Anzahl der Dichtungen: 3 Dichtungen
- UW-Wert*: 0,83 W/(m²K)
- Anordnung des Flügels: Flächenversetzt
- Design: Hochwertiges Design
- Dreifach-Verglasung möglich
- Schallschutz: bis zu 48 dB
- Einbautiefe: 90 mm
- Anzahl der Kammern: 3 Kammern
- Anzahl der Dichtungen: 3 Dichtungen
- UW-Wert*: 0,8 W/(m²K)
- Anordnung des Flügels: Flächenversetzt
- Design: Moderner Look
- Dreifach-Verglasung möglich
- Schallschutz: bis zu 47 dB
- Einbautiefe: 112 mm
- Anzahl der Kammern: 3 Kammern
- Anzahl der Dichtungen: 3 Dichtungen
- UW-Wert*: 0,75 W/(m²K)
- Anordnung des Flügels: Flächenversetzt
- Design: Kantiger Look
- Dreifach-Verglasung möglich
- Schallschutz: bis zu 47 dB
