REYNAERS Fenster
Fenster sind entscheidend für Licht, Komfort und das Erscheinungsbild Ihres Hauses. Mit Reynaers Fenstern setzen Sie auf hochwertige Aluminium- und PVC-Lösungen, die modernes Design, Langlebigkeit und höchste Energieeffizienz vereinen. Ob für Neubau oder Renovierung – Reynaers bietet maßgeschneiderte Fenster, die Stil, Funktionalität und Sicherheit perfekt kombinieren.
Verwandeln Sie Ihr Zuhause in einen hellen, energieeffizienten und stilvollen Raum – jetzt Reynaers Fenster entdecken und kaufen!
Verwandeln Sie Ihr Zuhause in einen hellen, energieeffizienten und stilvollen Raum – jetzt Reynaers Fenster entdecken und kaufen!
Aluminium Fenster bestellen
REYNAERS Masterline 8
- Einbautiefe: 77 mm
- Anzahl der Kammern: Mehrkammerprofil
- Anzahl der Dichtungen: 3 Dichtungen
- UW-Wert*: 0,85 W/(m²K)
- Anordnung des Flügels: Flächenversetzt
- Design: Moderner Look
- Dreifach-Verglasung möglich
- Schallschutz: bis zu 45 dB
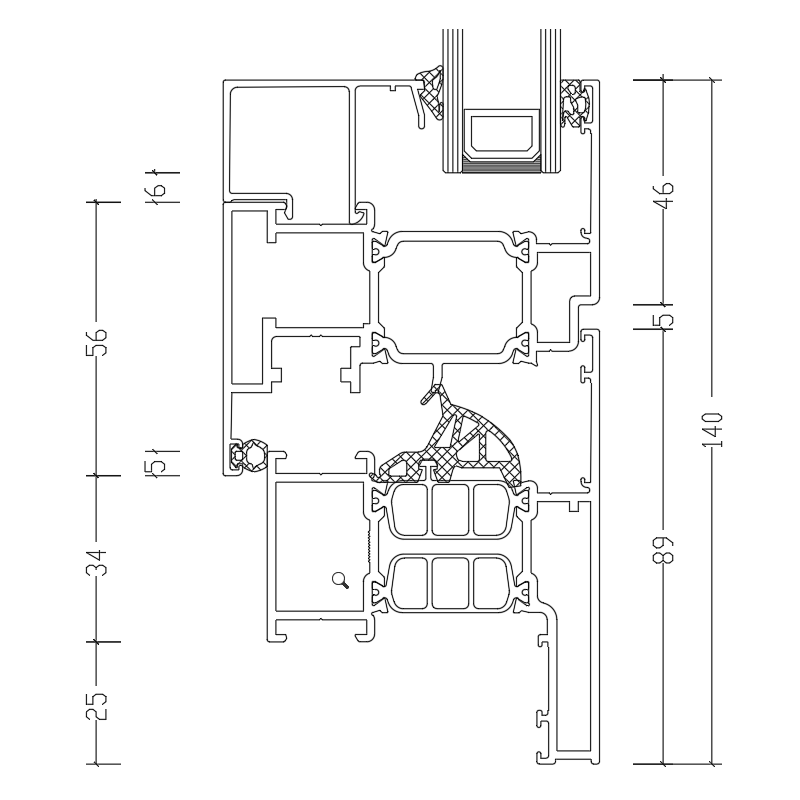
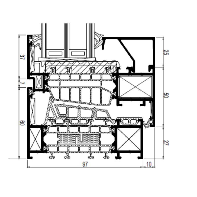
REYNAERS Masterline 10
- Einbautiefe: 97 mm
- Anzahl der Kammern: Mehrkammerprofil
- Anzahl der Dichtungen: 3 Dichtungen
- UW-Wert*: 0,78 W/(m²K)
- Anordnung des Flügels: Flächenversetzt
- Design: Moderner Look
- Dreifach-Verglasung möglich
- Schallschutz: bis zu 46 dB
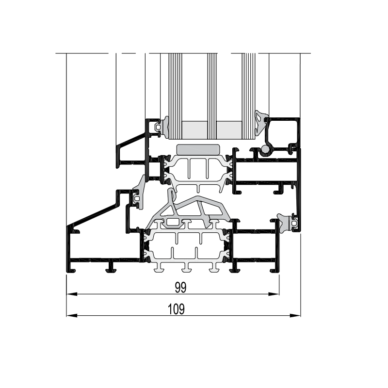
REYNAERS Slimline 38
- Einbautiefe: 99 mm
- Anzahl der Kammern: 3 Kammern
- Anzahl der Dichtungen: 3 Dichtungen
- UW-Wert*: 0,96 W/(m²K)
- Anordnung des Flügels: Flächenversetzt
- Design: Moderner Look
- Dreifach-Verglasung möglich
- Schallschutz: bis zu 45 dB
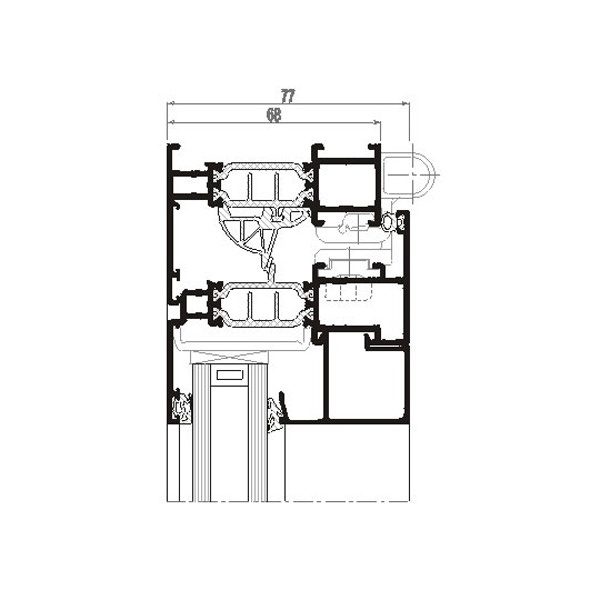
REYNAERS CS 77
- Einbautiefe: 68 mm
- Anzahl der Kammern: Mehrkammerprofil
- Anzahl der Dichtungen: 3 Dichtungen
- UW-Wert*: 1,3 W/(m²K)
- Anordnung des Flügels: Flächenversetzt
- Design: Moderner Look
- Dreifach-Verglasung möglich
- Schallschutz: bis zu 42 dB
REYNAERS SL 38 Reno NL
- Einbautiefe: 99 mm
- Anzahl der Kammern: 3 Kammern
- Anzahl der Dichtungen: 3 Dichtungen
- UW-Wert*: 0,99 W/(m²K)
- Anordnung des Flügels: Flächenversetzt
- Design: Schmale Optik
- Dreifach-Verglasung möglich
- Schallschutz: bis zu 45 dB
REYNAERS Masterline 8 Verdeckter Flügel
- Einbautiefe: 77 mm
- Anzahl der Kammern: Mehrkammerprofil
- Anzahl der Dichtungen: 3 Dichtungen
- UW-Wert*: 0,85 W/(m²K)
- Anordnung des Flügels: Flächenversetzt
- Design: Verdecktliegender Flügel
- Dreifach-Verglasung möglich
- Schallschutz: bis zu 45 dB
REYNAERS Masterline 8 RENO
- Einbautiefe: 77 mm
- Anzahl der Kammern: Mehrkammerprofil
- Anzahl der Dichtungen: 3 Dichtungen
- UW-Wert*: 0,85 W/(m²K)
- Anordnung des Flügels: Flächenversetzt
- Design: Renovationsrahmen
- Dreifach-Verglasung möglich
- Schallschutz: bis zu 45 dB
REYNAERS CS 77 RENO
- Einbautiefe: 68 mm
- Anzahl der Kammern: Mehrkammerprofil
- Anzahl der Dichtungen: 3 Dichtungen
- UW-Wert*: 0,95 W/(m²K)
- Anordnung des Flügels: Flächenversetzt
- Design: Moderner Look
- Dreifach-Verglasung möglich
- Schallschutz: bis zu 42 dB
