Stahl Balkontür
Stahl-Balkontüren überzeugen durch außergewöhnliche Stabilität, Sicherheit und eine klare, moderne Ästhetik. Das robuste Material eignet sich besonders für große Türanlagen oder Gebäude mit hohen Sicherheitsanforderungen. Dank ihrer enormen Tragfähigkeit ermöglichen Stahlkonstruktionen großzügige Glasflächen, die viel Tageslicht in den Wohnraum lassen und dennoch höchste Stabilität gewährleisten. Zudem sind Stahl-Balkontüren äußerst langlebig, widerstandsfähig gegen Witterungseinflüsse und bieten zahlreiche Gestaltungsmöglichkeiten – von klassisch bis industriell-modern.
Stahl Balkontür bestellen
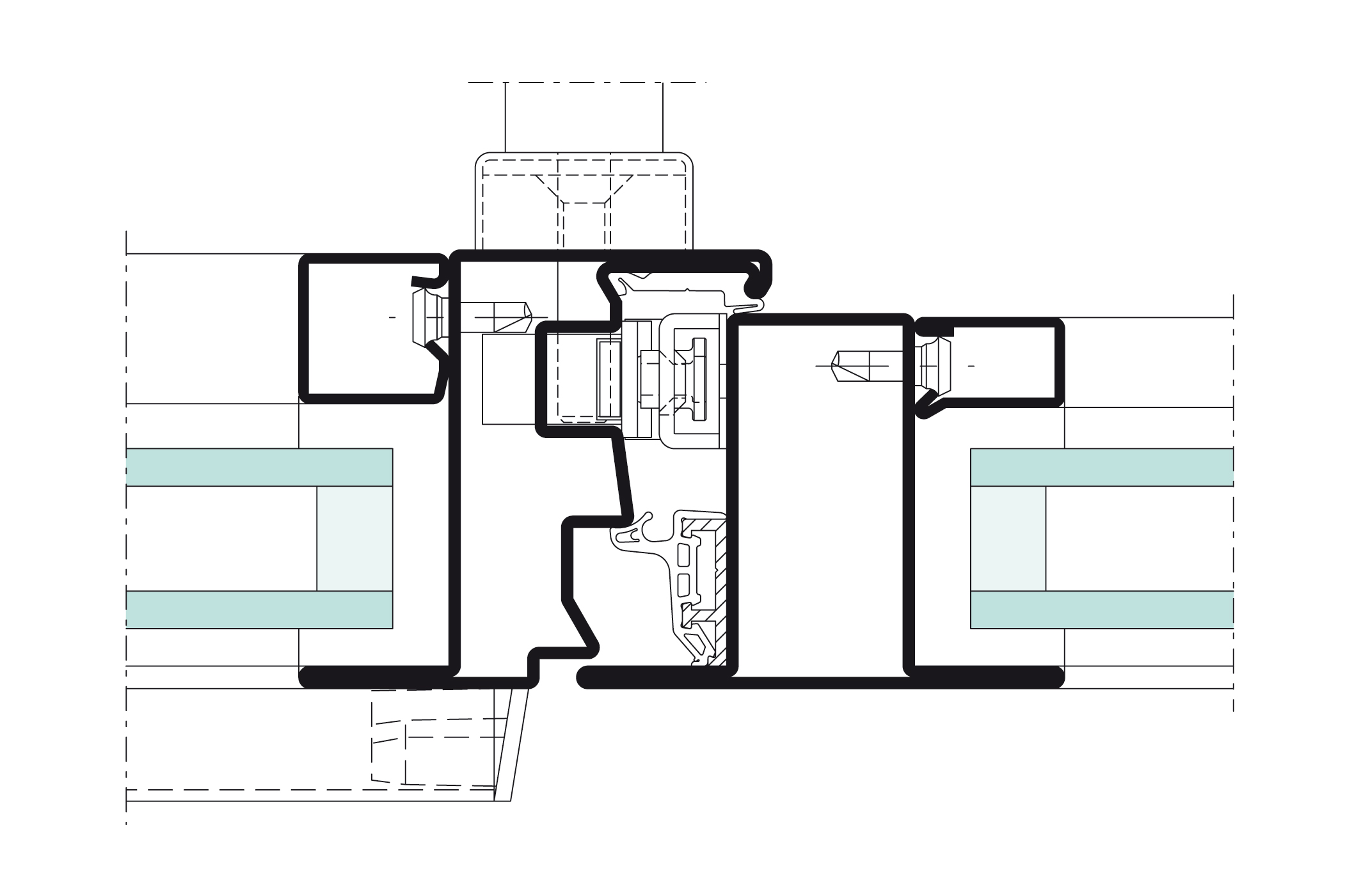
EKO OKNA Presto
- 1-Kammer-Profil
- 2 EPDM-Dichtungen
- 50mm Bautiefe
- Uw =
EKO OKNA Unico
- 1-Kammer-Profil
- 3 EPDM-Dichtungen
- 70mm Bautiefe
- Uw = 1,30 W/(m2K)
