Kunststoff-Aluminium Balkontür
Kunststoff-Aluminium-Balkontüren verbinden die Vorteile zweier Materialien zu einer modernen und langlebigen Lösung. Während der robuste Aluminium-Außenschutz optimal vor Witterungseinflüssen schützt und für ein elegantes Erscheinungsbild sorgt, bietet die Kunststoff-Innenseite hervorragende Wärmedämmung, Pflegeleichtigkeit und ein attraktives Preis-Leistungs-Verhältnis. Diese Kombination macht Kunststoff-Alu-Balkontüren nicht nur besonders stabil und widerstandsfähig, sondern auch vielseitig in Design und Farbgestaltung. So vereinen sie Energieeffizienz, Komfort und zeitlose Ästhetik in einem Produkt.
PVC-Aluminium Balkontür bestellen
ALUPLAST IDEAL 5000 ALUSKIN
- 5-Kammer-Profil
- 3 Dichtungen
- 70mm Bautiefe
- Uw = 0,94 W/(m2K)
DRUTEX Iglo Energy Alucover
- 7-Kammer-Profil
- 3 EPDM-Dichtungen
- 93mm Bautiefe
- Uw = 0,76 W/(m2K)
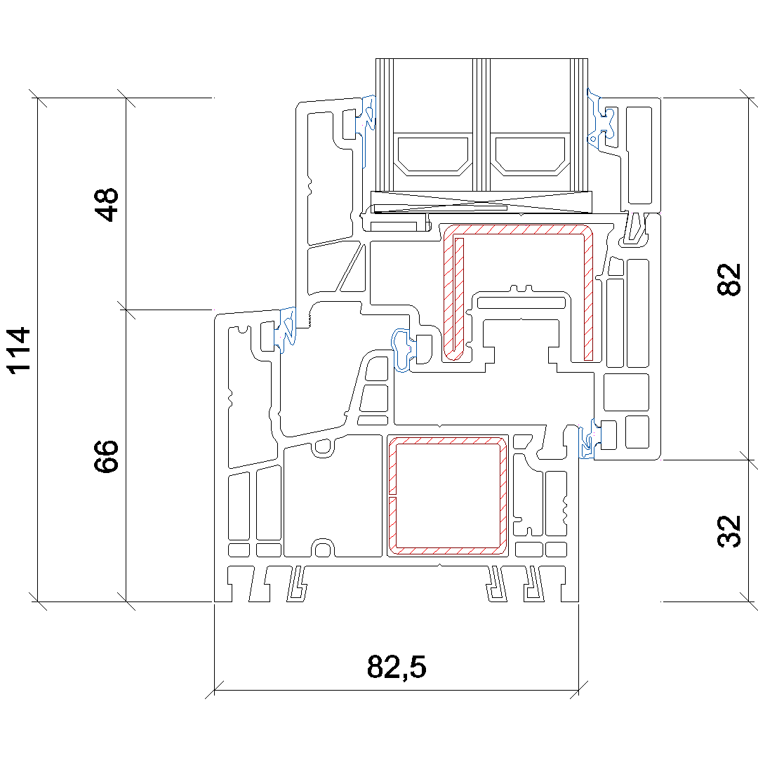
GEALAN KONTUR
- 5/6-Kammer-Profil
- 3 Dichtungsebenen
- 82,5mm Bautiefe
- Uw = 0,70 W/(m2K)
