CORTIZO Fenster
Fenster sind mehr als nur eine Öffnung nach draußen – sie bestimmen den Charakter, die Atmosphäre und den Komfort Ihres Zuhauses. Mit CORTIZO Fenstern entscheiden Sie sich für hochwertige Aluminium- und PVC-Systeme, die modernste Wärmedämmung, elegantes Design und maximale Sicherheit vereinen. Ob für Neubau oder Renovierung, CORTIZO bietet Ihnen maßgeschneiderte Lösungen, die Funktionalität und Ästhetik perfekt miteinander verbinden.
Gestalten Sie Ihr Zuhause neu und setzen Sie auf Qualität, die begeistert – jetzt CORTIZO Fenster entdecken und kaufen!
Aluminium-Fenster bestellen
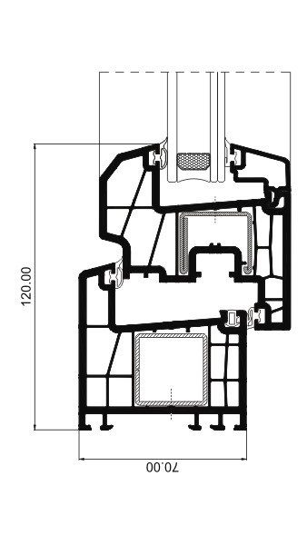
COR CASEMENT
- Einbautiefe: 70 mm
- Anzahl der Kammern: 3 Kammern
- Anzahl der Dichtungen: 2 Dichtungen
- UW-Wert*: 1,0 W/(m²K)
- Anordnung des Flügels: Flächenversetzt
- Design: Nach außen öffnend
- Dreifach-Verglasung möglich
- Schallschutz: bis zu 45 dB
COR 70 HO Verdeckter Flügel
- Einbautiefe: 70 mm
- Anzahl der Kammern: 3 Kammern
- Anzahl der Dichtungen: 3 Dichtungen
- UW-Wert*: 0,75 W/(m²K)
- Anordnung des Flügels: Flächenversetzt
- Design: Schlankes Design
- Dreifach-Verglasung möglich
- Schallschutz: bis zu 46 dB
COR 70 INDUSTRIAL
- Einbautiefe: 70 mm
- Anzahl der Kammern: 3 Kammern
- Anzahl der Dichtungen: 3 Dichtungen
- UW-Wert*: 0,75 W/(m²K)
- Anordnung des Flügels: Flächenversetzt
- Design: Schlankes Design
- Dreifach-Verglasung möglich
- Schallschutz: bis zu 48 dB
PVC-Fenster bestellen
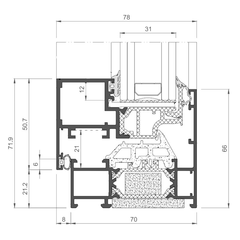
CORTIZO A84
- Einbautiefe: 84 mm
- Anzahl der Kammern: 6 Kammern
- Anzahl der Dichtungen: 2 Dichtungen
- UW-Wert*: 0,74 W/(m²K)
- Anordnung des Flügels: Flächenversetzt
- Design: Zeitlos
- Dreifach-Verglasung möglich
- Schallschutz: bis zu 46 dB
CORTIZO A70
- Einbautiefe: 70 mm
- Anzahl der Kammern: 5-6 Kammern
- Anzahl der Dichtungen: 2 Dichtungen
- UW-Wert*: 0,9 W/(m²K)
- Anordnung des Flügels: Flächenversetzt
- Design: Minimalistischer Look
- Dreifach-Verglasung möglich
- Schallschutz: bis zu 46 dB
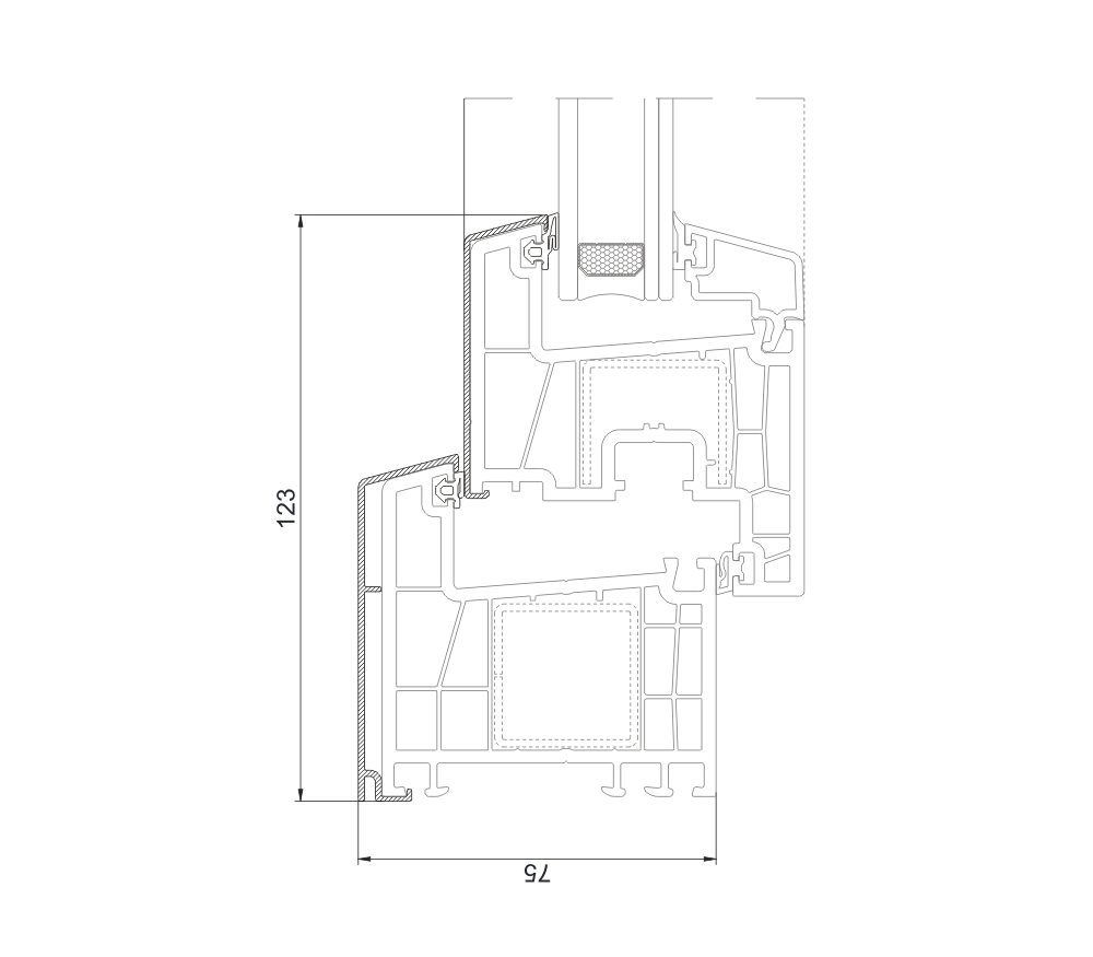
CORTIZO Alcover
- Einbautiefe: 75 mm
- Anzahl der Kammern: 5 Kammern
- Anzahl der Dichtungen: 2 Dichtungen
- UW-Wert*: 1,2 W/(m²K)
- Anordnung des Flügels: Flächenversetzt
- Design: Hochwertig, Modern
- Dreifach-Verglasung möglich
- Schallschutz: bis zu 46 dB
