Aluminium-Terrasentüren
Aluminium-Terrassentüren stehen für moderne Eleganz, hohe Stabilität und außergewöhnliche Langlebigkeit. Dank der robusten Eigenschaften des Materials sind sie besonders widerstandsfähig gegenüber Witterungseinflüssen und behalten auch bei starker Beanspruchung ihre Form und Funktion. Schlanke Rahmenkonstruktionen ermöglichen großzügige Glasflächen, die für lichtdurchflutete Räume und einen fließenden Übergang zwischen Innen- und Außenbereich sorgen. Zudem bieten Aluminium-Terrassentüren vielfältige Design- und Farbvarianten, sodass sie sich harmonisch in jede Architektur einfügen – von klassisch bis puristisch-modern.
Wir empfehlen
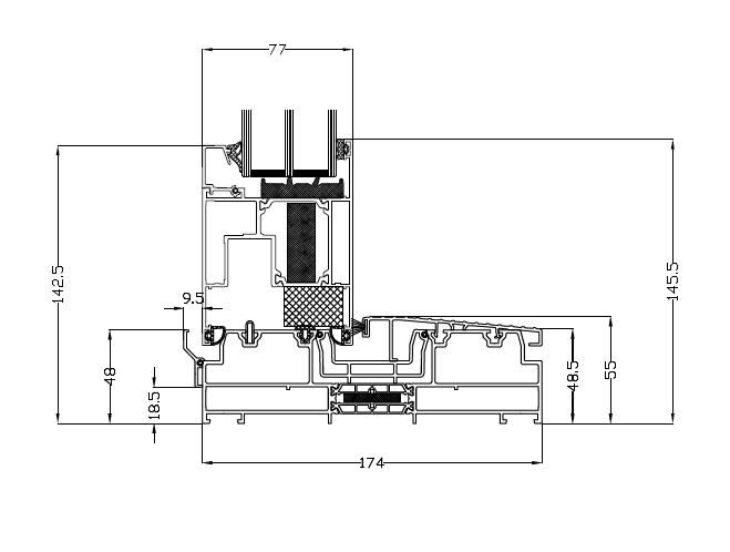
DRUTEX MB-77HI HS
- Einbautiefe: 174 mm
- Anzahl der Kammern: 3 Kammern
- Anzahl der Dichtungen: 2 Dichtungen
- UW-Wert*: 1,0 W/(m²K)
- Anordnung des Flügels: Flächenversetzt
- Design: Moderner Look
- Dreifach-Verglasung möglich
- Schallschutz:
ALIPLAST Ultraglide
- Einbautiefe: 153 bis 239 mm
- Anzahl der Kammern: 3/5/7 Kammern
- Anzahl der Dichtungen: 2 Dichtungen
- UW-Wert*: bis zu 0,99 W/(m²K)
- Anordnung des Flügels: Flächenversetzt
- Design: Schlankes Design
- Dreifach-Verglasung möglich
- Schallschutz: bis zu 43 dB
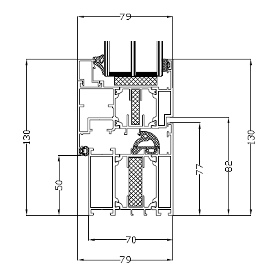
DRUTEX PSK MB-70
- Einbautiefe: 70 mm
- Anzahl der Kammern: 3 Kammern
- Anzahl der Dichtungen: 3 Dichtungen
- UW-Wert*: 0,8 W/(m²K)
- Anordnung des Flügels: Flächenversetzt
- Design: Kantig, Modern
- Dreifach-Verglasung möglich
- Schallschutz:
